
K DISPOZICI
Nikoly Vapcarova 3175/18, Praha 12
5 450 000 Kč včetně všech poplatků, provize RK i právního servisu.
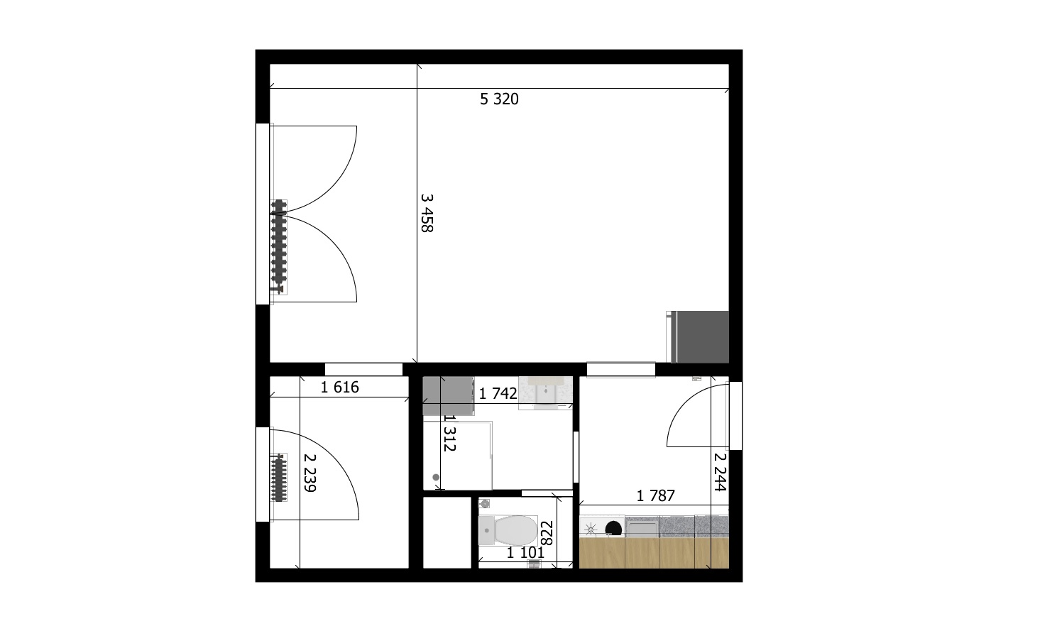
Zprostředkujeme k prodeji byt 1+kk o celkové podlahové ploše 32,2 m², který se nachází na adrese Nikoly Vapcarova, Praha 4 – Modřany. K bytu náleží také sklepní kóje, která poskytuje praktický úložný prostor.
Jedná se o dobře udržovaný byt se zajímavým dispozičním řešením. Majitel chytře proměnil původní kuchyni v samostatný pokoj a kuchyňskou linku prakticky umístil do chodby. Díky tomu je obytný prostor využitý na maximum a byt působí mnohem prostorněji a praktičtěji. Nemovitost má za sebou částečnou rekonstrukci, jejíž součástí je zděná koupelna se sprchovým koutem a oddělená toaleta. Nová je také část rozvodů.
Dům je v udržovaném stavu a čeká ho zateplení, které v budoucnu zvýší komfort bydlení a sníží náklady na energie. Lokalita Praha 4 – Modřany nabízí kompletní občanskou vybavenost a příjemné okolí.
Hned u domu najdete supermarket Albert, základní i mateřské školy. Kousek to máte i na Sofijské náměstí, kde je pošta, banky, drogerie, Pepco nebo Poliklinika Modřany. Pro volný čas a relaxaci je ideální nedaleká Modřanská rokle a okolní zeleň. Samozřejmostí je výborná dopravní dostupnost díky zastávkám autobusu a tramvaje, které jsou v pohodlné docházkové vzdálenosti.
Pokud hledáte menší, chytře řešený byt v místě, kde máte vše po ruce, tato nabídka stojí za zvážení. Byt je skvělou volbou pro vlastní bydlení i jako investice.







