
K DISPOZICI
Podskalská 408/6, Praha 2
6.450.000,- Kč., včetně všech poplatků a právního servisu.
Nabízíme k prodeji družstevní, nepřevoditelný byt 1+kk o velikosti 28 m², který se nachází ve 3. nadzemním podlaží domu na adrese Podskalská 408/6 v centru Prahy.
Jedná se o kompaktní garsonieru vhodnou jak pro investici, tak pro případné vlastní bydlení po ukončení současné nájemní smlouvy. Byt je v původním, avšak udržovaném stavu, což dává novému majiteli prostor pro modernizaci podle vlastních představ, přičemž současný stav umožňuje okamžité užívání nebo pronájem bez nutnosti větších zásahů.
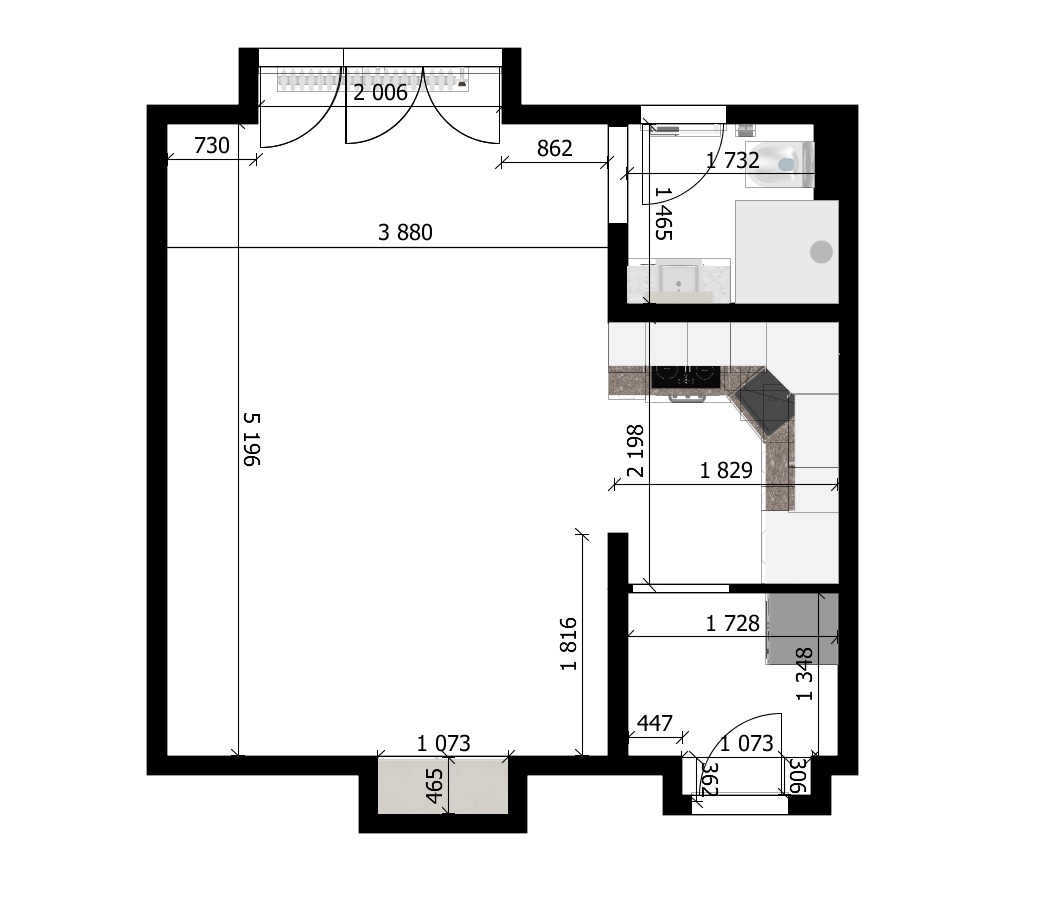
Dispozice bytu je praktická a přehledná: vstupní chodba navazuje na obývací pokoj s kuchyňským koutem, dále je zde samostatná koupelna se sprchovým koutem. V koupelně je instalován elektrický bojler, který zajišťuje ohřev vody. Topení v domě je centrální, což zajišťuje stabilní a bezproblémové vytápění v chladnějších měsících. Z oken bytu je příjemný výhled do klidného vnitrobloku, takže i přesto, že se byt nachází v centru města, nabízí určité soukromí a klid.
Dům je vybaven výtahem, což zvyšuje komfort bydlení i pro starší osoby nebo při stěhování. Lokalita v centru Prahy zaručuje výbornou dostupnost městské dopravy, obchodů, restaurací a veškeré občanské vybavenosti, což činí byt atraktivním pro nájemníky i pro vlastní bydlení. Vzhledem k velikosti a poloze jde o zajímavou investiční příležitost s potenciálem stabilního výnosu z pronájmu.
V současné době je v bytě platná nájemní smlouva, proto plánujeme prodej a předání nemovitosti až v listopadu 2026. Prohlídky jsou však možné již nyní po předchozí domluvě, rádi zájemcům byt ukážeme a poskytneme veškeré dostupné informace a dokumentaci.
Pokud hledáte menší byt v centru Prahy s potenciálem pro investici nebo chcete získat přehled o možnostech úprav a návratnosti investice, tato nabídka stojí za zvážení.
TECHNICKÉ INFORMACE



GRAFICKÝ ORIENTAČNÍ PLÁNEK



