
PRONÁJEM 2+kk
K DISPOZICI
Za Mlýnem 1723, Hostivice
Nájemné: 14.500,- Kč / měs. Zálohy: 3.000,- Kč / měs. Elektřina na nájemce Jistota (kauce): 30.000,- Kč Provize RK: 14.500,- Kč + 21 % DPH
Zprostředkujeme podnájem bytu o dispozici 1+kk v přízemí bytového domu v Hostivici, ulice Za Mlýnem.
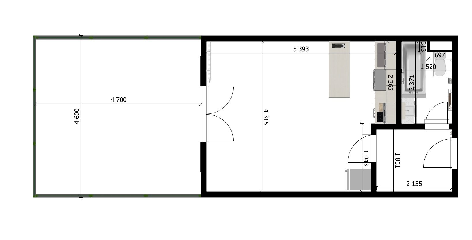
Byt má podlahovou plochu 29,35 m² a jeho velkou přidanou hodnotou je vlastní zahrada o výměře 22,85 m². Celková plocha, kterou můžete reálně využívat, tak činí 52,20 m².
Dispozice je prakticky řešená a působí vzdušně. Hlavní obytný prostor s kuchyňským koutem má 22,05 m². Kuchyňská část je vybavena zcela novou elektrickou varnou deskou (dvoj-plotýnka), elektrickou troubou, digestoří, lednicí s kombinovaným mrazákem a pračkou. V obytné části je instalováno menší patro na spaní, které je možné po předchozí domluvě demontovat. Z pokoje je přímý vstup na příjemnou, oplocenou zahradu ve vlastním užívání – ideální pro posezení, zeleň a každodenní relax bez nutnosti jezdit "na vzduch" mimo domov. Součástí bytu je předsíň o velikosti 3,98 m² s prostorem pro úložné řešení. Koupelna se společným WC má 3,32 m² a je vybavena vanou a umyvadlem.
Majitel preferuje nekuřáky bez domácích mazlíčků. Případné výjimky jsou možné po předchozí individuální dohodě (s ohledem na charakter bytu, sousedy a pravidla domu). Rádi vaši žádost posoudíme individuálně.
TECHNICKÉ INFORMACE

GRAFICKÝ PLÁNEK



PATRO NA SPANÍ
V obytné části je instalováno menší patro na spaní, které je možné po předchozí domluvě demontovat.
LOKALITA
V okolí ulice Za Mlýnem v Hostivicích najdete praktické vlakové spojení ze stanice Hostivice (10 min. chůzí) do Prahy (Ruzyně, Dejvice, Masarykovo nádraží) i Kladna a také autobusové linky PID, které v oblasti běžně obsluhují místní zastávky a navazují na metro B (Zličín) podle jízdních řádů. Na běžné nákupy je po ruce například Lidl a na volný čas jsou velmi oblíbené Hostivické rybníky s možností procházek a odpočinku u vody. Kulturní a společenský program ve městě zajišťuje MKSH Hostivice a další akce (kultura, sport, dětské programy) město pravidelně zveřejňuje v kalendáři akcí.
