
K DISPOZICI
Nad Studánkou 874/7, Praha 4
Nájemné: 28.000,- Kč/měs. Zálohy na služby: 2.000,- Kč/měs. Elektřina a plyn: cca 4.000,- Kč/měs. (přepis na nájemce) Jistota (kauce): 60.000,- Kč Provize RK: 28.000,- Kč + 21 % DPH
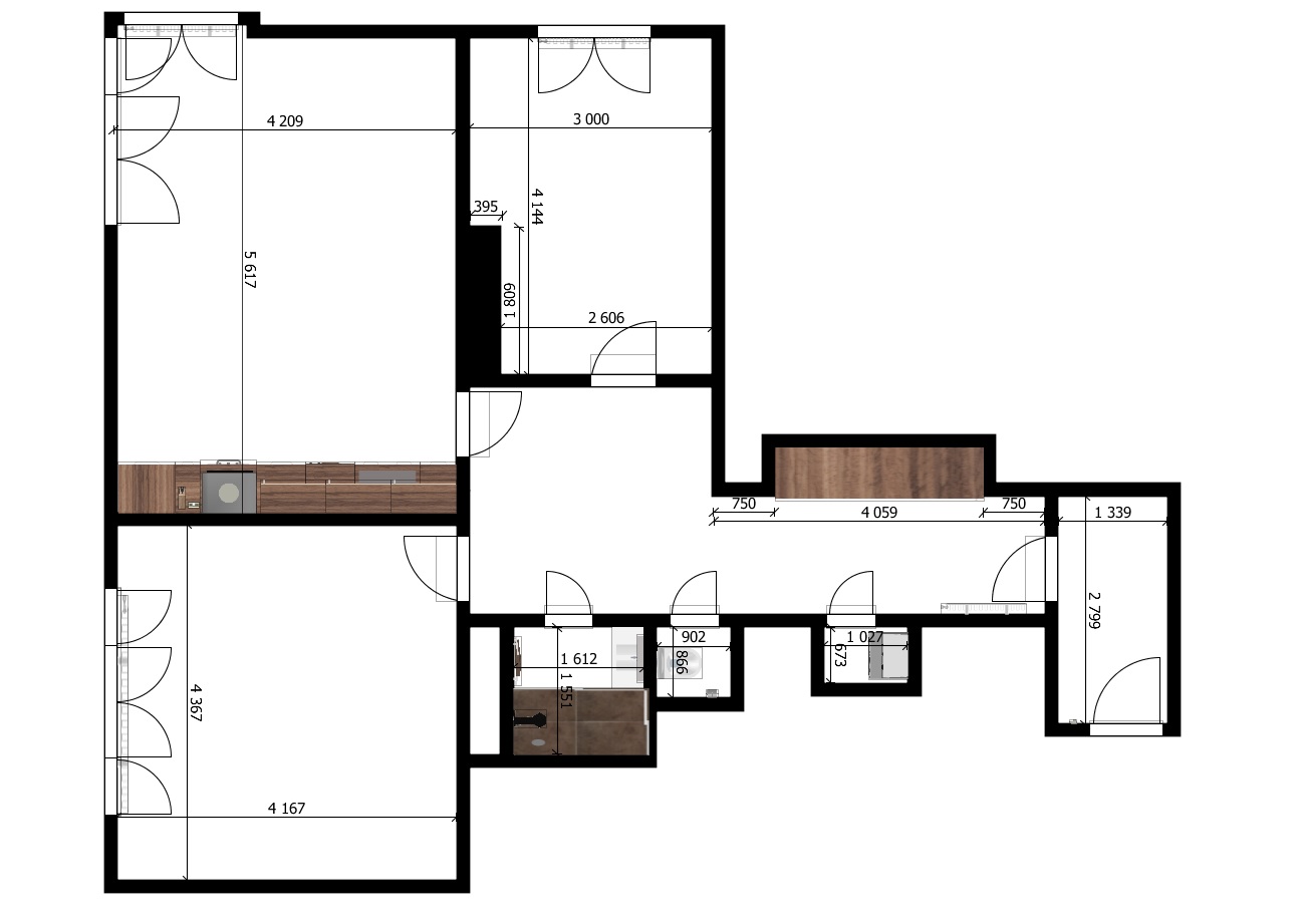
Nabízíme k dlouhodobému pronájmu světlý a útulný byt o dispozici 3+kk v oblíbené lokalitě Praha – Nusle. Byt je situován ve 3. patře domu bez výtahu.
Dispozice je řešena prakticky – obývací pokoj s kuchyňským koutem tvoří přirozené centrum domácnosti. Kuchyňská linka je k dispozici včetně vestavných spotřebičů: lednice s mrazákem, indukční varná deska, digestoř, myčka nádobí a elektrická trouba. Obývací část je zařízena sedací soupravou, konferenčním stolkem, jídelním stolem se židlemi a TV stěnou.
V bytě se nachází dva samostatné pokoje vybavené postelemi s rošty, pracovními stoly a volně stojící skříní. Koupelna je po kompletní rekonstrukci a disponuje sprchovým koutem, umyvadlem, zrcadlem a topným žebříkem. Úložné prostory zajišťuje vstupní chodba s botníkem a dále prostorná chodba s vestavěnou skříní a komodou. Byt se pronajímá zařízený dle fotografií. Vytápění i ohřev vody zajišťuje vlastní plynový kotel. K bytu náleží nadstandardní sklepní prostor o výměře 20 m².
Preferujeme dlouhodobý pronájem a hledáme slušné a spolehlivé nájemce.
FOTOGALERIE
TECHNICKÉ INFORMACE

GRAFICKÝ PLÁNEK



LOKALITA
Stanice metra C – Pankrác a OC Arkády jsou vzdáleny cca 6 minut chůze. V blízkosti se nachází také tramvajová zastávka Na Veselí (linky 18, 19) a autobusová zastávka Sdružení (linka 188) s rychlým spojením do centra. V okolí nechybí park Jezerka, základní i střední škola, školka, místní potraviny, kavárny, restaurace ani zdravotní služby. Lokalita je vyhledávaná pro svou funkcionalistickou architekturu a kombinaci klidného bydlení s výbornou občanskou vybaveností. Díky blízkosti metra, kancelářského centra Pankrác a plné občanské vybavenosti je tento byt atraktivní volbou.
