
REZERVOVÁNO
Vítkovická 370, Praha 18
REZERVOVÁNO
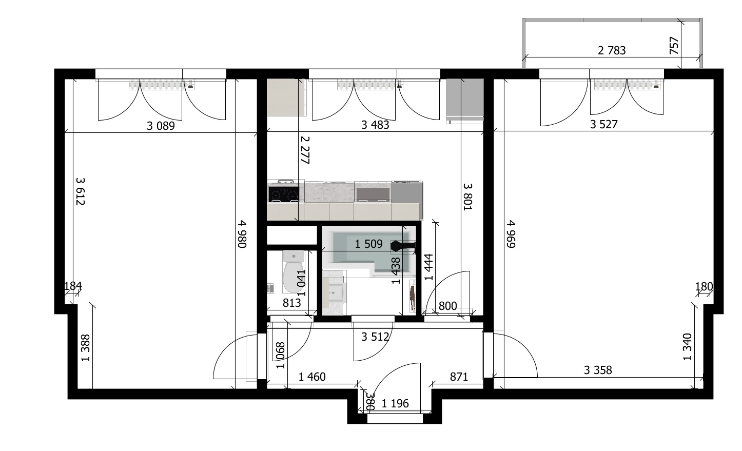
Nabízíme k prodeji byt v osobním vlastnictví o celkové podlahové ploše 48,36 m², ke kterému náleží balkón o výměře 2,12 m² a sklepní kóje o velikosti 3 m² umístěná v přízemí domu. Jednotka se nachází v posledním podlaží udržovaného bytového domu bez výtahu. Byt je v původním stavu a představuje tak ideální příležitost pro budoucího vlastníka upravit si vše plně podle svých představ. Dispozičně je nemovitost řešena jako dvě samostatné obytné místnosti, dále je zde chodba, toaleta, koupelna a kuchyně. V současné době je byt pronajat solventnímu nájemníkovi, který by v případě dohody mohl v nájmu pokračovat.



Nemovitost se nachází pár minut od stanice metra "C" a jednoho z největších obchodně-zábavních center v České republice. Toto obchodní centrum přináší velké množství možností trávení volného času všem generacím. Nákupy, multikino, restaurace, fitness a zimní stadion, to jsou jen některé druhy zábavy, které vás zde čekají.
Občanská vybavenost je v Letňanech také na velmi vysoké úrovni. Nalezneme zde mateřské školy, základní a střední školu, poštu, veletržní areál a také zdravotnická zařízení. V blízkosti rezidence se nachází rozsáhlý lesopark se stezkami pro pěší, cyklisty, bruslaře i běžkaře.



