
K DISPOZICI
Východní 2610, Česká Lípa
3.250.000,- Kč
Cena uvedena včetně všech poplatků, provize RK i právního servisu.
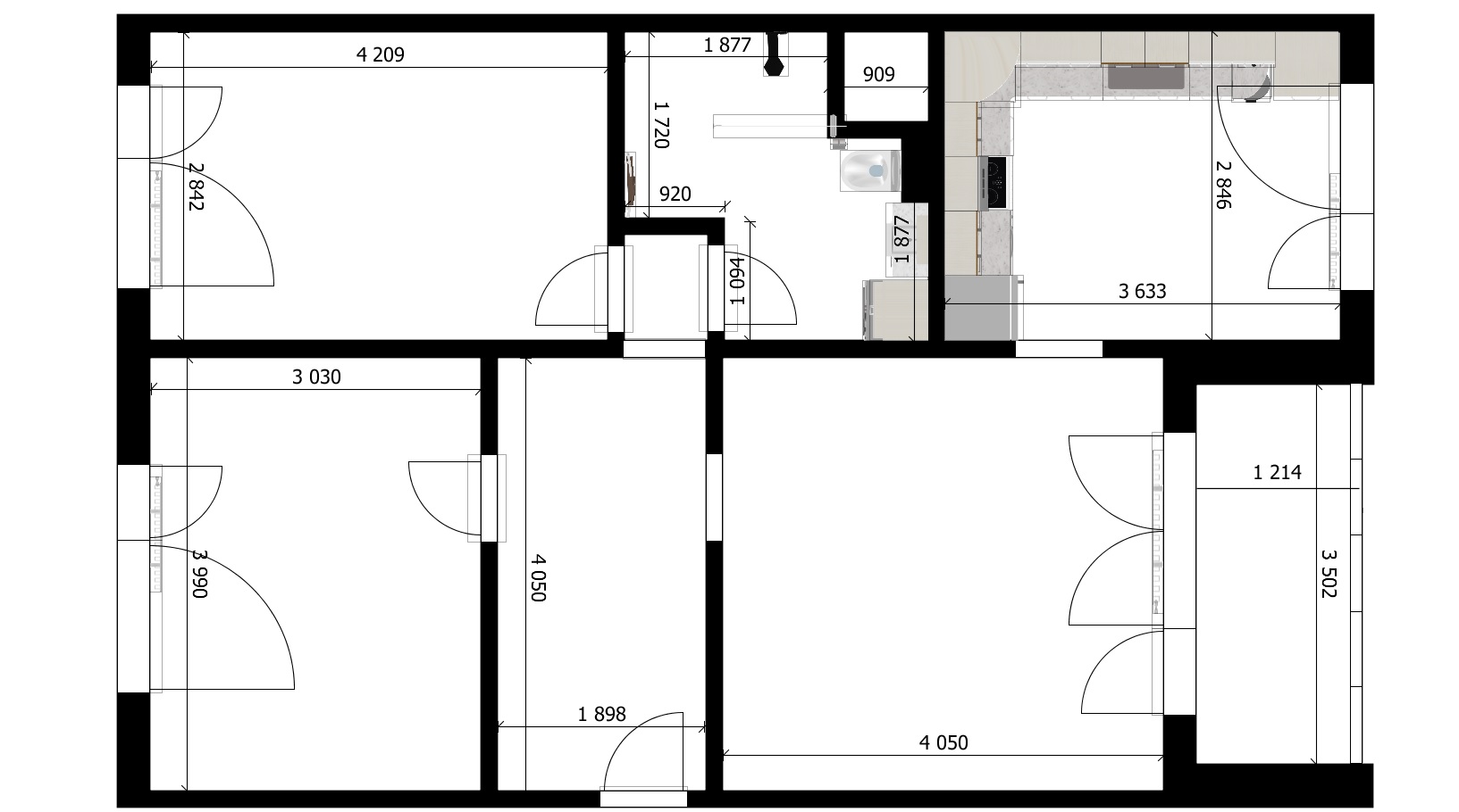
Nabízíme k prodeji družstevní byt 3+1 o podlahové ploše 66,7 m² v 6. nadzemním podlaží panelového domu s výtahem, a to v klidné ulici Východní.
Dispozičně je byt řešen obývacím pokojem s lodžií, kuchyní s orientací na jižní stranu a překrásným výhledem.
Dále se v bytě nachází ložnice a další pokoj s orientací na sever, koupelna se sprchovým koutem a WC.
Nemovitost díky své velikosti nabízí možnost zbudování úložných prostor.
Byt nedávno prošel částečnou rekonstrukcí (zděné jádro, podlahové krytiny).
K bytu náleží právo užívat sklepní kóji, která se nachází v 1. PP domu.
Převod do OV: po splnění podmínek BD
Anuita: 0,- Kč
Náklady: 5760,- Kč
Z toho FO: 1912,- Kč
Dům prošel částečnou rekonstrukcí (střecha, fasáda, plastová okna, lodžie, odpadní a vodovodní přípojky do bytů) a je v udržovaném stavu.
Upozornění
Prodávající si vyhrazuje právo vybrat kupujícího na základě jím zvolených kritérií.
OBÝVACÍ POKOJ



KUCHYŇ



VÝHLED Z OBÝVACÍHO POKOJE A KUCHYNĚ



LOŽNICE




POKOJ / PRACOVNA



VÝHLED Z LOŽNICE A POKOJE



KOUPELNA

CHODBA


TECHNICKÉ INFORMACE

NÁKLADY

GRAFICKÝ PLÁNEK



Česká Lípa nabízí dobrou dopravní dostupnost. Možnost parkování na ulici nebo na blízkém parkovišti. V docházkové vzdálenosti se nachází obchody, školka, škola i gymnázium. Nedaleko je také nemocnice, pošta, restaurace a další. Pro volnočasové aktivity je velkou výhodou cyklostezka, velké množství zeleně, dětské a BMX hřiště.
POHLED NA DŮM






